Ambachtsschool Gouda

26-02-16

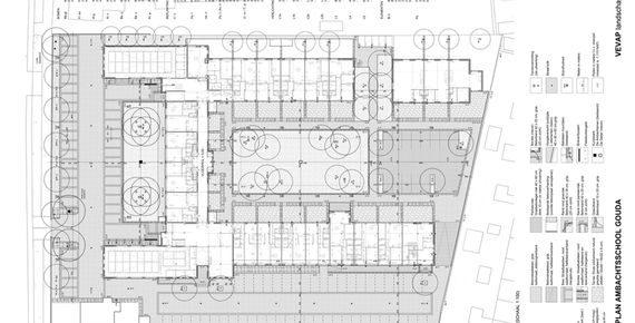
Na jaren van voorbereiding is van de week gestart met de sloop- en bouwwerkzaamheden voor de realisatie van 67 woningen in de voormalige Ambachtsschool (rijksmonument) in Gouda.  VEVAP landschapsachitectuur heeft het afgelopen jaar het sanerings- en inrichtingsplan voor de buitenruimte gemaakt.

Samenwerking JAM & VEVAP

12-02-16

JAM architecten & VEVAP landschapsarchitectuur hebben de handen ineengeslagen en bundelen vanaf nu hun krachten voor ruimtelijke projecten op het gebied van zowel grote als kleine infrastructuur. 

Batterijen aan de Overeindseweg

14-11-15

Het communicatiebureau ID310 is officieel de nieuwe eigenaar van het Nieuwegeinse fortterrein aan de Overeindseweg. Wethouder Johan Gadella verzorgde 14 november de symbolische sleuteloverdracht aan de enthousiaste initiatiefnemers. Het fortterrein wordt een inspirerende en ontspannende omgeving voor de zakelijke markt en recreanten. Het fortterrein dat meer dan 100 jaar afgesloten geweest is, wordt hiermee weer publiek toegankelijk. Tot de publieke opening in 2017 staat de renovatie van de gebouwen en het landschap centraal.

Ambachtsschool Gouda

11-11-15

Het plan voor de herinrichting van de buitenruimte is met veel lof ontvangen door de ARK en monumentencommissie. Het plan wordt omschreven als subtiel en passend bij het monumentale karakter van dit rijksmonument.

Bureauexcursie Texel

27-09-15

Bureauexcurie Texel; slapen, eten, drinken en een excursie naar eigen werk.

Viaducten N9 Schoorldam / de Stolpen (2011), Camp Silver Texel (2005-2010) en Strekdam / Strandvlakte Texel Noord (1995). 

Batterijen aan de Overeindseweg

13-05-15

ID310 maakt samen met VEVAP landschapsarchitectuur het winnende plan.

Het fortterrein Overeindseweg in Nieuwegein krijgt een nieuwe eigenaar. Nadat het terrein meer dan 100 jaar afgesloten is geweest, hebben de bestuurders van het samenwerkingsverband Linieland op dinsdag 12 mei besloten om het fortterrein aan de Overeindseweg na een openbare inschrijving te gunnen aan evenementen- en communicatieadviesbureau ID310 uit Houten.

Ed Taverne, lid van de beoordelingscommissie: “Met het plan van bureau ID310 wordt ook dit onderdeel van de Nieuwe Hollandse Waterlinie grondig opgeknapt en vervolgens opnieuw in gebruik genomen. De kracht van het plan schuilt in de subtiele aanpassingen van het terrein en de gebouwen aan de nieuwe functies. Ik ben er van overtuigd dat het straks een uitnodigende en aangename plek is voor zowel toevallige passanten, recreanten alsmede de zakelijke bezoekers.”

De Korsholm

29-04-15

Eind april is de herinrichting van de Korsholm opgeleverd.

De Worstelaar

09-04-15

Begin maart is de Worstelaar verplaatst naar zijn nieuwe plek op het Stationsplein van Hoofddorp.

Lobberdense waard

24-03-15

Begin maart is na zes weken ter inzage te hebben gelegen de ontgrondingsvergunning en het bestemmingsplan voor de Lobberdense Waard onherroepelijk geworden. Medio 2015 gaat de uitvoering van het project van start. 

Brug over de Hoofdvaart

19-02-15

Na een jaar bouwen zijn 19 maart de bruggen over de Hoofdvaart in de Haarlemmermeer opgeleverd.

Stationsomgeving Hoofddorp

21-01-15

Op 21 januari heeft de wethouder de stationsomgeving in Hoofddorp feestelijk geopend. 

De Korsholm

14-01-15

In aansluiting op de renovatie van de woningen is begin januari de herinrichting van de openbare ruimte van de Korsholm van start gegaan.

N9

29-11-14

De N9 is als voorbeeldproject opgenomen in het tijdschrift GO, gebiedsontwikkeling in beweging.

Binnentuinen de Heelmeesters

28-11-14

De binnentuinen van de Heelmeesters zijn dit najaar gepubliceerd in The Project International Magazine (een Rusisch tijdschrift voor architectuur, stedenbouw en landschapsarchitectuur).

Golf- en villaresort Harderwold

11-10-14

In het Golf- en bosresort Harderwold in Zeewolde is 11 oktober de 50e villa feestelijk opgeleverd. De villa's zijn ontworpen door Jan des Bouvrie.

Stationsomgeving Hoofddorp

04-10-14

Begin september is de uitvoering van de herinrichting van de stationsomgeving in Hoofddorp van start gegaan.

De Heelmeesters Amsterdam

26-09-14

De Heelmeesters zijn genomineerd voor de Amsterdamse nieuwbouwprijs 2014.

Amaliapaviljoen (Theehuys) Baarn

02-09-14

Welstands- en monumenten commissie hebben unaniem een positief advies afgegeven voor de bouw van het paviljoen aan het Stationsplein in Baarn.

Binnentuin Casa 400

26-07-14

Op 26 juli was de opening van de tentoonstelling 'Beelden onder zeeniveau (Marcel Joosen)' in de binnentuin van Casa 400. Het beeld in de waterstroom is door het hotel aangekocht.

Reinaldapark

27-06-14

Zaterdag 27 juni is het hernieuwde Reinaldapark in Haarlem door de Burgemeester geopend.

Gemeentehaven Warmond

21-06-14

Feest op het plein; open brandweerdag met markt en demonstraties. 

Landgoed Wouwse Plantage

07-05-14

Met de ondertekening van de anterieure overeenkomst tussen de Gemeente Roosendaal en Finvest Holding is het startsein gegeven voor de herontwikkeling van het Landgoed Wouwse Plantage.

Bomenplein Lugano Hoofddorp

14-04-14

Begin april is de inrichting van het bomenplein (verlengde Burgemeester van Stamplein) in Hoofddorp centrum opgeleverd.

Gemeentehaven Warmond

28-02-14

28 maart is de Gemeentehaven in Warmond officeel geopend. De deelnemers aan het participatietraject zijn als dank in de bloemen gezet.

Brug over Hoofdvaart

14-02-14

Begin februari is er begonnen met de sloop van de oude bruggen over de Hoofdvaart. Het komende jaar wordt er gewerkt aan een nieuwe brug. Deze brug is door VEVAP landschapsarchitectuur in samenwerking met Advin ontworpen.